3D Skatepark Planung A+ Urban Design
check_circleIm Produktpreis enthalten

Planung
Inklusive.

Sie möchten einen Skatepark planen und bauen lassen? Bei uns kaufen Sie kein Produkt von der Stange. Sie erhalten eine individuelle Architektenleistung, maßgeschneidert auf Ihren Standort und Ihre Bedürfnisse.

Vom Architekten gedacht.
Nicht vom Verkäufer.

Bei A+ Urban Design ist die Planung kein externer Posten, sondern der Kern unserer Arbeit. Gründer Dipl.-Ing. Cüneyit Akcakoca ist freier Architekt. Das bedeutet für Sie:

  • architecture
    25+ Jahre ErfahrungWir planen Skateanlagen und entwickeln Skateelemente seit über 25 Jahren. Draufsicht, 3D-Rendering und Kostenübersicht inklusive.
  • compare
    Modulbau statt OrtbetonBessere Qualitätskontrolle (Betonstärken, Bewehrung, Fugen), schnellere Ausführung, nahezu wetterunabhängig — und meistens günstiger.
  • verified
    DIN EN 14974 konformNormgerechte Planung ist Standard. Für Projekte ab 100.000 EUR stellen wir DWG-Dateien zur Verfügung.
Technische Zeichnung Skatepark
DIN EN 14974
RADIUS CHECK
Fig 01. Technische ZeichnungStatus: Approved
Planungsbeispiele

So planen wir.

Sie nennen uns die verfügbare Fläche und das Budget — wir erstellen einen individuellen Entwurf mit Draufsicht, 3D-Zeichnung und Kostenübersicht. Bei besonderen Wünschen senden Sie uns einfach eine Skizze als Vorlage.

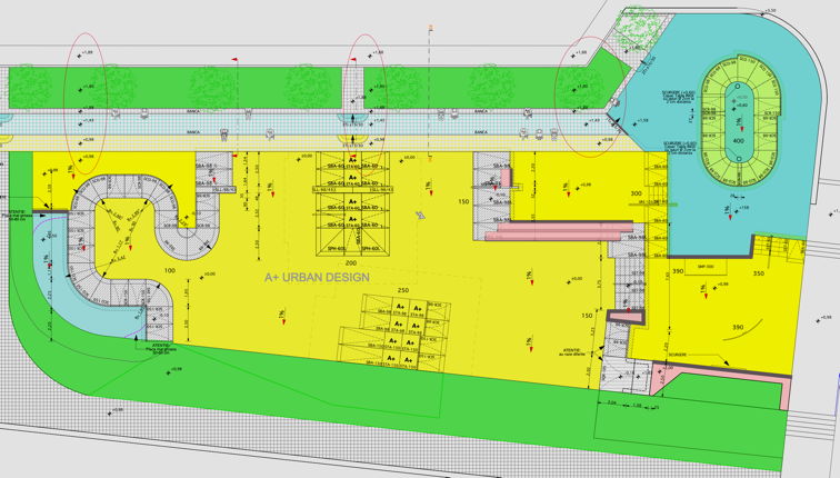
Skatepark Planung Draufsicht
DRAUFSICHT — SKATE-ANLAGE
Skatepark Planung anbetoniert
PLANUNG — ANBETONIERTE MODULE
Skate-Anlage in Denkmalschutzgebiet
Realisierte Skate-Anlage
Hinweis für Planer und Architekten: Für die im Erdreich eingelassenen Skate-Elemente stellen wir einen Systemschnitt zur Verfügung. Bei größeren Skateanlagen ab 100.000 EUR brutto können wir DWG-Dateien bereitstellen. Für bestehende Flächen werden Module mit Übergangsblechen aufgestellt — bei neuen Flächen können Module ohne Übergangsbleche zum Anbetonieren verwendet werden.
Workflow

Der Weg zum Park.

01

Analyse & Skizze

Wir prüfen Ihren Standort (digital oder vor Ort) und erstellen erste Layout-Ideen basierend auf Budget und Zielgruppe.

02

3D Visualisierung

Sie erhalten eine Draufsicht und 3D-Zeichnung der vorgeschlagenen Anlage sowie ein Angebot mit den Kosten der eingeplanten Elemente.

03

Ausführung

Nach Freigabe erstellen wir die exakten Werkpläne. Die Module werden im Werk gefertigt und just-in-time geliefert.

Bau & Umsetzung

Schneller. Einfacher. Witterungs-unabhängig.

Der Bau eines Skateparks mit modularen Beton-Fertigteilen ist schneller, einfacher und witterungsunabhängiger als eine vor Ort gegossene Ortbeton-Konstruktion. Unsere TÜV-zertifizierten Module werden im Werk unter kontrollierten Bedingungen produziert — mit konstanter Qualität und ohne Wetterrisiko.

Für die Aufstellung wird lediglich ein fester Unterbau benötigt. Die Elemente lassen sich auf bestehende betonierte oder asphaltierte Flächen montieren — wahlweise mit Übergangsblechen oder auf Fundamentplatten zum Anbetonieren.

Unser eigens entwickeltes Verfugungssystem ist UV- und witterungsbeständig, dauerhaft elastisch und gleichzeitig schleifbar und befahrbar. Damit lassen sich auch große Parcours nahtlos verbinden.

layers

Variante 1 — Bestandsfläche

Aufstellung auf einer bestehenden, befestigten Fläche (Beton oder Asphalt). Die Module werden mit Übergangsblechen verbunden — schnellster Aufbau ohne Erdarbeiten.

foundation

Variante 2 — Neue Fundamentplatte

Bei Neuanlagen wird eine Fundamentplatte gegossen. Die Module werden direkt auf die Platte aufgestellt und anbetoniert — fugenloser Übergang zum Untergrund.

tune

Variante 3 — Schotterbett

Elemente ab 35 cm Höhe haben Arretierungsfüße zur Höheneinstellung. Damit ist eine Aufstellung auf verdichtetem Schotterbett ohne Mörtelbett möglich.

Starten wir die Planung?

Lassen Sie uns über Ihre Fläche sprechen. Die Erstberatung und Kostenschätzung ist für Kommunen und Vereine unverbindlich.

Produktkatalog

Alle technischen Daten, Maße und Zertifikate zu diesem Produkt in einer Datei.

Datenschutz akzeptieren. Infos.

Datenschutzeinstellungen

Wir nutzen Cookies und ähnliche Technologien, um unsere Website für Sie zu optimieren und Ihnen ein bestmögliches Nutzungserlebnis zu bieten.
ImpressumDatenschutz